안녕하세요. 오늘은 도시의 복잡함 속에서 나만의 쉼표를 찾고 계신 여러분께, 진정한 휴식과 여유를 선물해 줄 특별한 공간을 소개해 드리기 위해 이 자리에 섰습니다.
용인 기흥 고매동에 자리 잡은 엘리오 타운하우스는 단순한 주거 공간을 넘어, 삶의 질을 한 단계 끌어올려 줄 주택으로 선착순 분양중 입니다.
용인 기흥구 고매동은 수도권 남부에서도 도심 속 전원생활이라는 이상적인 주거 형태를 실현할 수 있는 몇 안 되는 지역입니다.
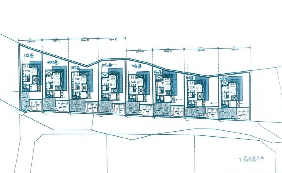
특히 엘리오 타운하우스는 총 8세대로 이루어진 단독형 고급 주택단지로, A 타입 4세대, B 타입 4세대로 구성되어 희소성을 높였습니다.
2024년 9월 준공을 완료하여 즉시 입주가 가능하기 때문에, 번잡한 건축 과정 없이 바로 새로운 삶을 시작할 수 있다는 점이 큰 장점입니다. 시행사 보유분에 한해 선착순 분양 중이므로, 관심 있으신 분들은 서둘러 문의하시는 것이 좋습니다.

엘리오 타운하우스의 가장 큰 매력은 바로 넓은 정원입니다. 전체 대지면적 118평의 자연녹지지역에 건폐율 20%를 적용하여, 1층과 2층의 연면적은 47.2평으로 건축되었습니다.
일반적인 주택들과 비교해 낮은 건폐율을 적용했기 때문에, 주택이 차지하는 면적을 최소화하고 남은 공간을 정원으로 활용할 수 있습니다. 맑은 공기 속에서 나만의 정원을 가꾸거나, 반려동물과 함께 마음껏 뛰어놀 수 있는 여유를 누릴 수 있습니다.

엘리오 타운하우스는 단순히 외관만 화려한 곳이 아닙니다. 보이지 않는 부분까지 최고급 자재를 사용해 그 가치를 더했습니다.
위생기구는 대림 고급 제품, 주방가구는 현대 리바트를 채택하여 주거의 편의성과 품격을 높였으며 온돌마루는 독일산 수입품을 사용해 고급스러운 분위기와 따뜻한 감촉을 선사하며, 창호는 뛰어난 단열과 방음 효과를 자랑하는 이건 시스템창호로 시공했습니다. 외벽은 이집트산 마감재, 지붕은 스페인산 기와와 프랑스산 제품을 사용하는 등 세계 각지의 명품 자재를 아낌없이 사용하여 주택의 완성도를 극대화했습니다.

엘리오타운하우스는 입주민의 편의를 위해 다양한 가전제품을 무상으로 제공합니다.
냉장고, 김치냉장고, 워시타워(세탁기, 건조기), 식기세척기, 전자레인지, 광파오븐, 스타일러, 천장형 에어컨까지, 생활에 필요한 모든 가전이 이미 갖춰져 있어 추가 비용 부담 없이 입주와 동시에 편리한 생활이 가능합니다.
이외에도 세대당 4대의 보안용 CCTV를 설치해 입주민의 안전을 최우선으로 고려했으며, 벽체 내단열 시스템과 대리석 마감 등 세심한 부분까지 놓치지 않았습니다.

엘리오 타운하우스는 자연 속 힐링을 제공하면서도, 도시의 편리함을 모두 누릴 수 있는 뛰어난 입지를 자랑합니다. 경부고속도로 기흥IC 진입이 용이하여 서울을 비롯한 수도권 주요 도심으로의 이동이 매우 편리합니다. 출퇴근이나 주말 나들이에도 막힘없는 교통 환경을 제공합니다.

주변에는 이미 풍부한 생활 인프라가 구축되어 있습니다. 롯데프리미엄아울렛 기흥점, 이케아 기흥점, 리빙파워센터 등이 인근에 위치해 쇼핑과 문화생활을 쉽게 즐길 수 있습니다. 또한, 조금 더 범위를 넓히면 롯데백화점, 코스트코, 이마트 트레이더스 등 대형 상업시설도 가까워 생활의 편의성이 매우 높습니다. 고급 주택단지에 위치한 만큼 주변 환경이 쾌적하고 조용하여 주거 만족도가 매우 높을 것으로 예상됩니다.

많은 분들이 궁금해하시는 분양가는 12.5억 원(부가세, 개발부담금 포함)으로 책정되었습니다. 대지면적 118평에 풀옵션 47평형 주택이 건축 완료된 점을 고려하면 매우 합리적인 금액이라 할 수 있습니다. 특히, 선시공 후분양 방식이므로 직접 눈으로 보고 결정할 수 있다는 장점이 있습니다.

하자 보증 기간도 확실합니다. 구조 부분은 5년, 마감 부분은 2년으로 지정되어 있어 안심하고 거주하실 수 있습니다. 북고남저형의 지형을 활용하여 모든 세대를 정남향으로 배치해 하루 종일 따뜻한 햇살을 느낄 수 있도록 설계한 점도 놓칠 수 없는 포인트입니다.

자연과 도시의 장점을 모두 누릴 수 있는 용인 기흥 엘리오 타운하우스. 소중한 가족과 함께 새로운 시작을 꿈꾸시는 분들께 이보다 더 좋은 선택지는 없을 것입니다. 현재 잔여 세대에 한해 선착순으로 분양이 진행 중이며, 계약 후 잔금 납부 시 즉시 입주 가능합니다.

저희 에이탑부동산은 고객님의 입장에서 가장 좋은 선택을 할 수 있도록 최선을 다해 안내해 드립니다. 궁금한 점이 있으시거나 현장을 직접 방문하고 싶으신 분은 연락 주십시오. 계약하시더라도 별도의 중개 보수는 발생하지 않습니다. 여러분의 성공적인 보금자리 찾기를 진심으로 응원합니다.
'부동산 중개 > 타운하우스(단독주택)' 카테고리의 다른 글
| 동탄 방교동 상가주택 매매 – 안정적 수익과 주거를 동시에 누릴 수 있는 프리미엄 매물 (1) | 2025.05.01 |
|---|